





















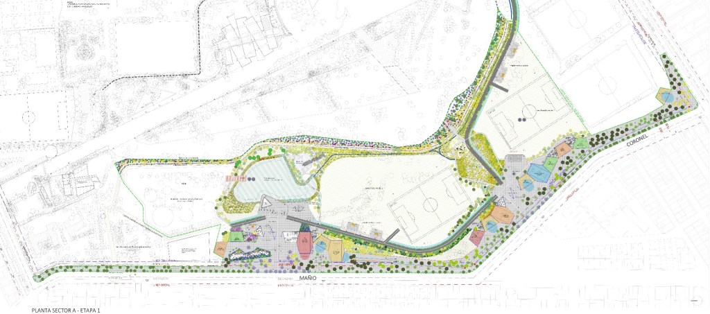
PARQUE BRASIL
La Granja, 2017
ETAPA 1
Parque publico que se emplaza en el actual parque Republica de Brasil alrededor del Museo Interactivo Mirador. Es un parque orientado a los niños y a la naturaleza. Se usa vegetación mediterránea y nativa para aminorar gastos en consumo de agua y para ofrecer una variedad de arboles, plantas originales y atractivas a los usuarios. Cuenta con equipamientos diversos y con áreas deportivas.
Desarrollado junto con la oficina Cancino Magrini Arquitectos.