








CASA EG
Curico, 2017
La casa EG es una casa en una ladera de arboles perennes que forman un bosque muy denso. Como siempre, se busca por una parte disfrutar de la vista y relación con el bosque y por otra parte, la suficiente protección del medio, ya que se trata de un paisaje de precordillera con inviernos muy helados.
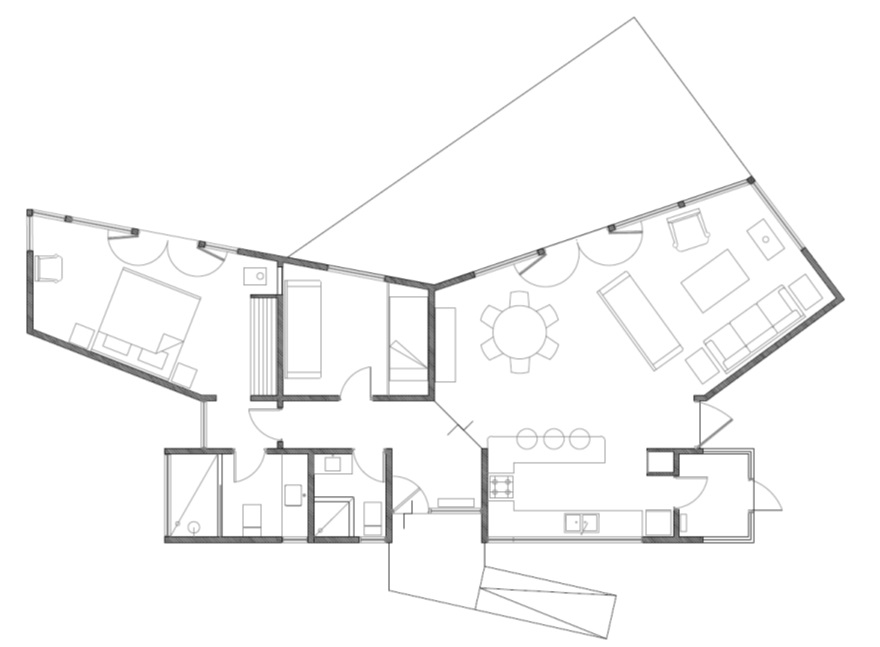
La casa se estructura a partir de un volumen muy regular que contiene todos los servicios y dos alas de formas mas sueltas que contienen los dormitorios y el estar comedor, con una terraza que domina el paisaje y las vistas entre las copas de los arboles.