






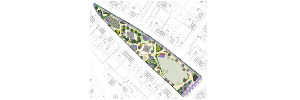
PLAZA AGUA PIEDRA
Colina, 2016
Parque privado con áreas de vegetación agrupadas en variados jardines que muestran especies florales de gran actractivo. Se jerarquiza además un área de pasto continua de manera de crear una amplitud visual, pero no dominante en superficie, con la idea de propiciar una economía en el gasto hídrico.